Kitchen, Dining & Living Renovations
Springfield, Q
The clients for this project are a working couple with an adult son who still lives at home and works full time. They wanted to transform the current area by creating an open living, dining, and kitchen space. Additionally, they wanted to relocate the kitchen to the rear of the area and increase the amount of storage available.
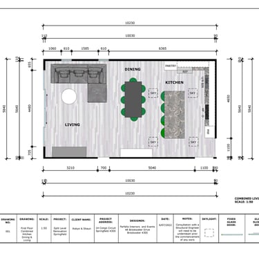
We carefully created a floor plan in accordance with the client's requirements, which involved removing the rear window to make space for the relocated kitchen, and removing a wall which divided the living from the kitchen and dining areas.
The new configuration not only provides a more spacious and integrated living experience but also allows for better functionality and organisation.
The client had a specific request for the colour scheme of the design, and we agreed on using mainly neutral colours and greys. We suggested incorporating green (the clients favourite colour) as the accent colour to bring some vibrancy and liveliness to the overall design. To give the client a visual representation of the design, we presented a sample boards that showcased the selected fixtures, fittings, and equipment. This allowed the client to have a clear understanding of how the final design would look like. We also provided a Schedule of Specifications giving the clients their own personalised shopping list for each room.
This project is currently in progress, and once it is complete, the family will have the opportunity to spend quality time together in their renovated home.








